今すぐ仕入れ物件を探す
物件詳細

石川県金沢市の商業施設がある幹線道路沿いの住宅地域にある戸建

種別
戸建
利回り
15.8%
ランク
★☆☆☆☆
入札締切 2026/04/15

周辺画像

※正確な物件画像が表示されない場合がございます。 詳細な画像は裁判所物件資料をダウンロードしてご確認下さい。

981会員プラン

周辺地図

  • 石川県金沢市しじま台二丁目 14番地12 周辺地図

※表示される地図は、実際の所在地と正確に一致しない場合があります。

共有URL

※お問合せなどの際にコピーしてお使い下さい

売却基準価額 12,170,000円
9,736,000円 から入札可能です

所在地・交通

所在地 石川県金沢市しじま台二丁目 14番地12
評価書上の交通 IRいしかわ鉄道線「金沢」駅 南方 道路距離 約9.1km 最寄バス停「しじま台」 南方 約80m(徒歩約1分) 

物件情報

種別 土地
物件番号 1
所在地 金沢市しじま台二丁目 14番12
家屋番号
地目(登記) 宅地
地目(現況)
土地面積(登記) 242.41m2
土地面積(現況)
用途地域 準住居地域
利用状況
建ぺい率 60%
容積率 200%
種別 建物
物件番号 2
所在地 金沢市しじま台二丁目 14番地12
家屋番号 14番12
種類(登記) 居宅・事務所
種類(現況)
構造(登記) 木造瓦葺2階建
構造(現況)
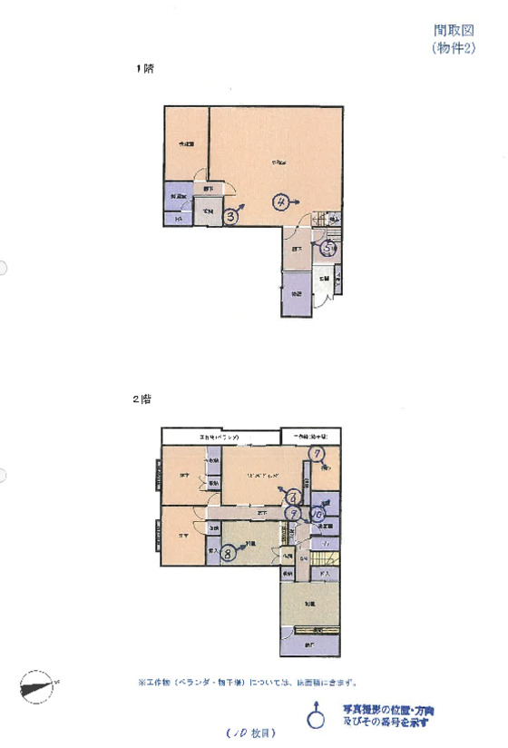
床面積(登記) 1階  96.87m2 2階 100.64m2
床面積(現況)
間取り その他
敷地利用権 所有権
占有者 債務者・所有者
築年月 昭和57年12月
附属建物
種類(登記) 未登記
種類(現況) 車庫
構造(登記) 未登記
構造(現況)
床面積(登記) 未登記
床面積(現況) 約17.01m2

数値情報

売却基準価額 12,170,000円 平米数 197㎡
単純純利回り 15.8%
表面利回り 21.7%
賃貸需要 11 / 25pt 買受可能価額 9,736,000円
耐用年数消化率 195% 買受申出保証額 2,434,000円

裁判所・入札期間情報

事件番号 令和07年(ケ)第60号 開札期日 2026/04/22
管轄裁判所 金沢地方裁判所本庁 閲覧開始日 2026/03/19
買受方法 期間入札1 入札期間 2026/04/08 ~ 2026/04/15
売却決定期日 2026/05/13 特別売却期間 2026/04/23 ~ 2026/04/23
お問合せ 裁判所物件資料
  • 裁判所物件資料をダウンロードして頂くことで、一般社団法人不動産競売流通協会(FKR)正会員をお気に入り登録に追加できます。 物件詳細に掲載されている単純純利回り及び、表面利回りは、売却基準価格を元に算出している指数ですので、実質利回りや収益性を知りたい方は一般社団法人不動産競売流通協会(FKR)正会員へお問合せください。

バーチャル入札

バーチャル入札 0件登録済 ログインしてご確認ください。
登録する
ワンポイントアドバイス

初めての競売 ~プロと二人三脚で大成功をつかむ5つの戦略~

  • その1 裁判所物件資料、分からなければ、プロに聞くべし!
  • その2 現地調査、不安だったら、プロと行くべし!
  • その3 入札額、絶対欲しいならば、プロに任せるべし!
  • その4 競売で、住宅ローンを使うなら、プロに相談すべし!
  • その5 トラブル発生、「どうしよう」と思ったら、プロを頼るべし!
理由はこちら ≫

データ分析

プロ AI落札価額予想 member-only
プロ ベーシック 類似過去落札事例 類似事例

クイックお問合せ

クイックお問合せ

981のワンストップサービス

  • step1. 入力
  • step2. 確認
  • step3. 完了
ご依頼概要
ご依頼詳細
※「落札予想価格はいくらですか?」という質問は回答できません。
自己資金
個人情報の取り扱いについて
皆さまが送付された個人情報は981.jpのサーバを経由し、一般社団法人不動産競売流通協会に保管されます。 981.jpで保管された個人情報の取り扱いについては、【こちら】 をご覧ください。 また、本画面でご記入いただいた個人情報は、お問合せ先の不動産会社に苗字のみ通知されます。 お問合せ先の不動産会社が保管する個人情報の取り扱いについては、不動産会社に直接お問合せください。

ワンポイントアドバイス

競売以外の不動産を購入する場合に物件資料に表示されている不動産価格は、購入諸経費(約7.5%)が含まれておりません。

よって、この物件を取得費1217万円で購入するのと、競売以外の不動産を1132万円(諸経費含まず)で購入するのとでは、最終的に同じ金額を支払うことになります。

競売は諸経費の計算式が他の不動産購入時とは異なりますが、一般消費者が直接的に「転売業者の仕入れ市場」から中間マージン(地域や物件種別にもよりますが平均3割)をカットして購入できる唯一の市場が「競売」です。

同じ金額を支払われるなら、割安にグレードアップした競売で購入されることをおすすめします。一般社団法人不動産競売流通協会(FKR)正会員があなたの物件購入をサポートしてくれます。お気軽にご相談ください。

※上記に記載されている金額は、売却基準価格をもとにした数値を表示しております。実際の「総取得費」を知りたい方はこちらの「入札シミュレーション」をご利用ください。

費用シミュレーション

こちらで物件取得にかかる総費用を計算することができます。

総取得費用をシミュレーション

入札価格 万円 競売サポート費用 万円
登録免許税 万円 滞納管理費等 万円
明渡し等の費用 万円 リフォーム費用 万円
その他費用 万円
希望の価格を入力して物件等取得費用を計算する
計算結果↓
総取得費用 万円

利回りをシミュレーション

家賃(収入) 万円 管理費等(支出) 万円
物件等取得費用から利回りを計算する
計算結果↓
想定利回り %
おすすめ物件
お役立ちコンテンツ