長野県松本市の静かな地域にある戸建
| 所在地・交通 | 種別 | 売却基準価額 | 買受可能価額 | ランク・利回り |
|---|---|---|---|---|
|
長野県松本市波田1982番地1、1981番地
アルピコ交通上高地線「波田」駅 北東方 約900m(道路距離) |
期間入札(1)
戸建 |
1,581,000円 | 1,264,800円 |
70%以上 |
情報掲載日 2026/03/19
※正確な物件画像が表示されない場合がございます。詳細な画像は、物件資料をダウンロードしてご確認下さい。
数値情報
| 売却基準価額 | 1,581,000円 | 平米数 | 148平米 |
|---|---|---|---|
| 単純純利回り |
70%以上 |
表面利回り |
96%以上 |
| 賃貸需要(/25pt) | 12pt | 買受可能価額 | 1,264,800円 |
| 耐用年数消化率 | 290% | 買受申出保証額 | 316,200円 |
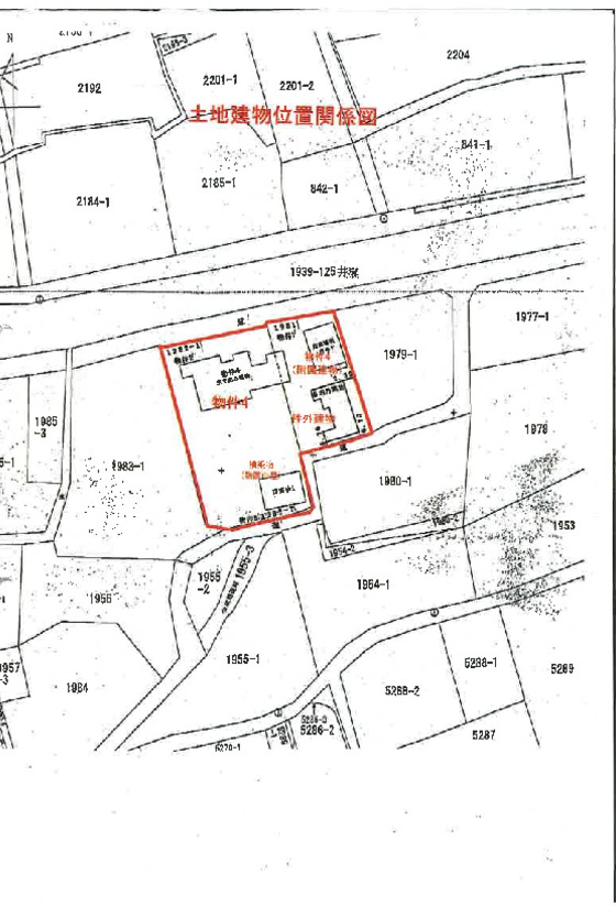
所在地・交通
| 所在地 |
※表示される地図は、実際の所在地と正確に一致しない場合があります。
|
||
|---|---|---|---|
| 評価書上の交通 |
アルピコ交通上高地線「波田」駅 北東方 約900m(道路距離) |
||
裁判所・入札期間情報
| 事件番号 |
令和07年(ヌ)第22号 |
開札期日 |
2026/04/15 |
|---|---|---|---|
| 管轄裁判所 |
長野地方裁判所松本支部 |
閲覧開始日 |
2026/03/19 |
| 買受方法 |
期間入札 |
入札期間 | 2026/04/03 ~ 2026/04/10 |
| 売却決定期日 |
2026/04/30 |
特別売却期間 | 2026/04/17 ~ 2026/04/17 |
物件情報
| 種別 |
土地 売却外物件あり |
物件番号 |
1 |
|---|---|---|---|
| 所在地 |
松本市波田 1981番 |
家屋番号 |
|
| 地目(登記) |
宅地 |
地目(現況) |
|
| 土地面積(登記) |
284.09m2 |
土地面積(現況) |
|
| 用途地域 |
市街化調整区域 |
利用状況 |
|
| 建ぺい率 |
60% |
容積率 |
200% |
| 種別 |
土地 |
物件番号 |
2 |
| 所在地 |
松本市波田 1982番1 |
家屋番号 |
|
| 地目(登記) |
宅地 |
地目(現況) |
|
| 土地面積(登記) |
614.23m2 |
土地面積(現況) |
|
| 用途地域 |
市街化調整区域 |
利用状況 |
|
| 建ぺい率 |
60% |
容積率 |
200% |
| 種別 |
土地 |
物件番号 |
3 |
| 所在地 |
松本市波田 1982番2 |
家屋番号 |
|
| 地目(登記) |
宅地 |
地目(現況) |
公衆用道路 |
| 土地面積(登記) |
3.08m2 |
土地面積(現況) |
|
| 用途地域 |
市街化調整区域 |
利用状況 |
|
| 建ぺい率 |
60% |
容積率 |
200% |
| 種別 |
建物 |
物件番号 |
4 |
| 所在地 |
松本市波田1982番地1、1981番地 |
家屋番号 |
1982番1 |
| 種類(登記) |
居宅 |
種類(現況) |
|
| 構造(登記) |
木造かわらぶき2階建 |
構造(現況) |
|
| 床面積(登記) |
1階 125.56m2
2階 23.18m2 |
床面積(現況) |
|
| 間取り |
その他 |
敷地利用権 |
所有権・その他 |
| 占有者 |
債務者・所有者 |
築年月 |
昭和37年1月 |
スポンサーリンク
広告を全て非表示
アクセス・連絡先
合同会社Zepp
TEL : 026-405-5890 / FAX : 026-405-5890
〒380-0901
長野県長野市居町49-4
MAP
営業時間: 10:00~17:00
定休日: 不定休
競売のこと、なんでもご相談下さい!
会社情報
| 会社名 | 合同会社Zepp | 住所 |
〒380-0901 長野県長野市居町49-4 |
|---|---|---|---|
| 代表社員 | 小山 明彦 | 免許番号 | 長野県知事(1)第6011号 |
| 設立年月 | 2018年7月 | 資本金 | 1,000,000円 |
| 従業員数 | 1人 | ||
| 所属団体 | 公益社団法人 宅地建物取引業協会 | ||
| 主な業務内容 | 不動産売買、賃貸、管理 | ||
担当者からのメッセージ
-
-
担当者 小山 明彦 得意分野 不動産全般 資格 宅地建物取引士、競売不動産取扱主任者、賃貸不動産経営管理士、液化石油ガス設備士
趣味 スキー、スポーツ観戦、読書、レーシングカート(復活希望の休止中)
メッセージ お役にたてるよう精進してまいります。お気軽にお問い合わせください。
スポンサーリンク
広告を全て非表示




