北海道札幌市南区の小規模な公共施設・小中学校等がある閑静な低層住宅地域の戸建
| 所在地・交通 | 種別 | 売却基準価額 | 買受可能価額 | ランク・利回り |
|---|---|---|---|---|
|
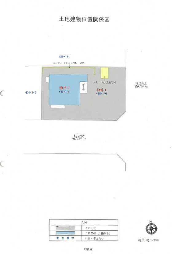
北海道札幌市南区藤野六条四丁目 436番地146
地下鉄南北線「真駒内」駅 南西方 道路距離 約7.5km,最寄バス停「藤野4条4丁目」 南方 道路距離 約470m |
期間入札(1)
戸建 |
9,260,000円 | 7,408,000円 |
11.6% |
情報掲載日 2026/02/13
※正確な物件画像が表示されない場合がございます。詳細な画像は、物件資料をダウンロードしてご確認下さい。
数値情報
| 売却基準価額 | 9,260,000円 | 平米数 | 109平米 |
|---|---|---|---|
| 単純純利回り |
11.6% |
表面利回り |
16.0% |
| 賃貸需要(/25pt) | 4pt | 買受可能価額 | 7,408,000円 |
| 耐用年数消化率 | 86% | 買受申出保証額 | 1,852,000円 |
所在地・交通
| 所在地 |
※表示される地図は、実際の所在地と正確に一致しない場合があります。
|
||
|---|---|---|---|
| 評価書上の交通 |
地下鉄南北線「真駒内」駅 南西方 道路距離 約7.5km
最寄バス停「藤野4条4丁目」 南方 道路距離 約470m |
||
裁判所・入札期間情報
| 事件番号 |
令和07年(ケ)第93号 |
開札期日 |
2026/03/12 |
|---|---|---|---|
| 管轄裁判所 |
札幌地方裁判所本庁 |
閲覧開始日 |
2026/02/13 |
| 買受方法 |
期間入札 |
入札期間 | 2026/02/27 ~ 2026/03/09 |
| 売却決定期日 |
2026/03/18 |
特別売却期間 | 2026/03/16 ~ 2026/03/19 |
物件情報
| 種別 |
土地 |
物件番号 |
1 |
|---|---|---|---|
| 所在地 |
札幌市南区藤野六条四丁目 436番146 |
家屋番号 |
|
| 地目(登記) |
宅地 |
地目(現況) |
|
| 土地面積(登記) |
252.32m2 |
土地面積(現況) |
|
| 用途地域 |
第一種低層住居専用地域 |
利用状況 |
|
| 建ぺい率 |
50% |
容積率 |
80% |
| 種別 |
建物 |
物件番号 |
2 |
| 所在地 |
札幌市南区藤野六条四丁目 436番地146 |
家屋番号 |
436番146 |
| 種類(登記) |
居宅 |
種類(現況) |
|
| 構造(登記) |
木造亜鉛メッキ鋼板葺2階建 |
構造(現況) |
|
| 床面積(登記) |
1階 56.31m2
2階 52.99m2 |
床面積(現況) |
|
| 間取り |
4LDK+納戸 |
敷地利用権 |
所有権 |
| 占有者 |
債務者・所有者 |
築年月 |
平成18年7月 |
スポンサーリンク
広告を全て非表示
アクセス・連絡先
有限会社日本マスターリンク社
TEL : 0115613500 / FAX : 0115613611
〒0640809
北海道札幌市中央区南九条西15丁目1番5号 ダイアパレス西線9条1階
MAP
営業時間: 9:00~18:00
定休日: 土・日・祝日
競売のこと、なんでもご相談下さい!
会社情報
| 会社名 | 有限会社日本マスターリンク社 | 住所 |
〒0640809 北海道札幌市中央区南九条西15丁目1番5号 ダイアパレス西線9条1階 |
|---|---|---|---|
| 取締役 | 田上 真理 | 免許番号 | 北海道知事石狩(5)第7035号 |
| 設立年月 | 2004年4月 | 資本金 | 5,000,000円 |
| 従業員数 | 2人 | ||
担当者からのメッセージ
-
-
担当者 田上 真理 得意分野 購入後の収益性や出口戦略を見据えたご提案を得意としています。 競売特有の権利関係・占有状況・追加費用のリスクを整理し、 初めての方でも安心して検討できる物件選定をサポートいたします。 資格 宅地建物取引士 賃貸不動産経営管理士
趣味 犬の散歩 ピラティス
メッセージ ご覧いただきありがとうございます! 有限会社日本マスターリンク社の田上と申します。 競売不動産は、通常の不動産仲介と比べて買主様の負うリスクが高いため、 その分、相場より安く購入できる可能性があります。 当社では、物件調査から権利関係の確認、入札手続き、落札後のサポートまで一貫して対応しており、 競売不動産が初めての方でも安心してご検討いただける体制を整えております。 「どこに注意すればよいのか分からない」 「失敗しない競売物件の選び方を知りたい」 といったお悩みにも、分かりやすく丁寧にご説明いたします。 競売物件のことなら、どんなことでもお気軽にご相談ください。
スポンサーリンク
広告を全て非表示




